Baur Massiv Haus - Individuelle Architektenhäuser zum Festpreis
Baur Massiv Haus - Individuelle Architektenhäuser zum Festpreis 

Beispiele für Satteldach - Häuser

Haus SD 165                                                      Wohnfläche 165 m²

Das Haus muss man erleben !

Die rundum Verglasung im Wohn- Essbreich gibt dem Haus einen besonderen Flair. Die elektrisch gesteuerten Jalousien sorgen für eine angenehme Termperatur und die gewünschte Helligkeit. Das Küchenfenster wurde tiefer geplant für eine integrierte Sitzbank.

Der integrierte Wintergarten als Highlight

Als die Bauherren die 3D-Ansichten gesehen haben, stand für Sie fest "So soll unser Traumhaus aussehen !" 

Alles was man zum Leben braucht !

Über die Ankleide kommt man in den Schlafbereich oder auch in den Nassbereich. WC und Bidet wurden durch eine separate Wand abgetrennt.

Nach 12 Monaten bezugsfertig !

Jetzt heißt es, die Aussenanlagen fertigzustellen, um den Sommer im eigenen Garten geniessen zu können. 

Haus SD 154                                                      Wohnfläche 154 m²

Grundriss (EG)

Ein Haus für die ganze Familie. Ob mit Bodenplatte oder mit Keller ist das Haus optimal auf die Bedürfnisse der Familie zugeschnitten.

Vorher sehen, was man kauft !

Perfekt geplant und hochwertig ausgeführt. Individuelle Wünsche sowie Eigenleistungen sind jederzeit möglich.

Grundriss (OG)

Große Kinderzimmer mit bodentiefen Fenstern bringen viel Licht in die Räume. Viel Platz gibt es auch im großzügig gestalteten Schlazimmer. Das Bad ist funktionell und bietet ausreichend Platz.

Änderungen bis zur Werkplanung

Gegenüber der Entwurfsplanung wurden hier noch Fenster angepasst.

Durch den Entfall der Eingangsüberdachung
(Fertiggarage) wurde in der Werkplanung der Eingang etwas zurück versetzt.

 

 

Haus SD 161                                                      Wohnfläche 161 m²

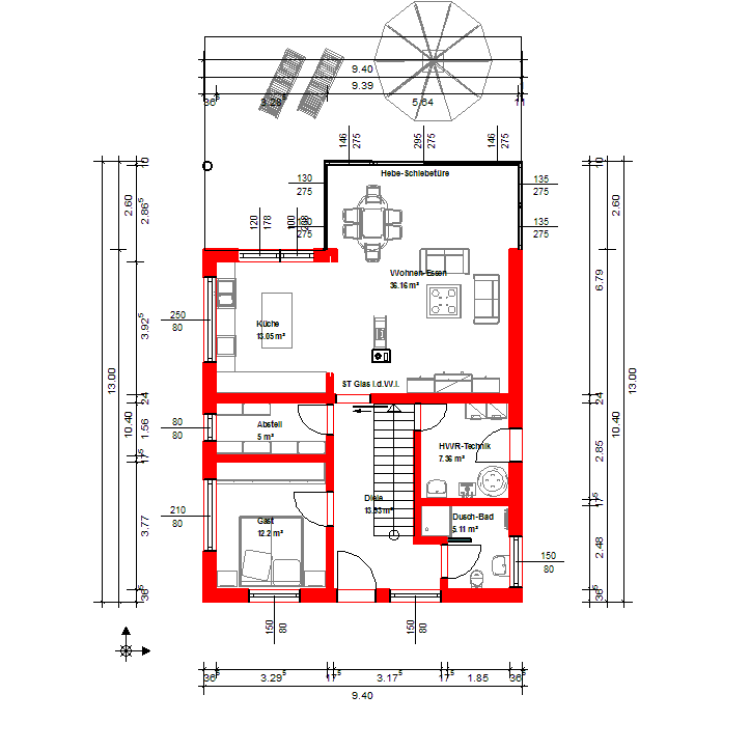
Grundriss (EG)

Ein klassisches Satteldachhaus auf Bodenplatte. Die Besonderheit des Hauses ist, dass die Treppe mittig im Haus angeordnet wurde.

Das verleiht dem Haus ein besonderes Flair und ergibt viel Platz!

3D - Ansicht

Mit den 3-D Ansichten können Sie sich schon vorher Ihr Haus anschauen, wie es später einmal aussehen soll.

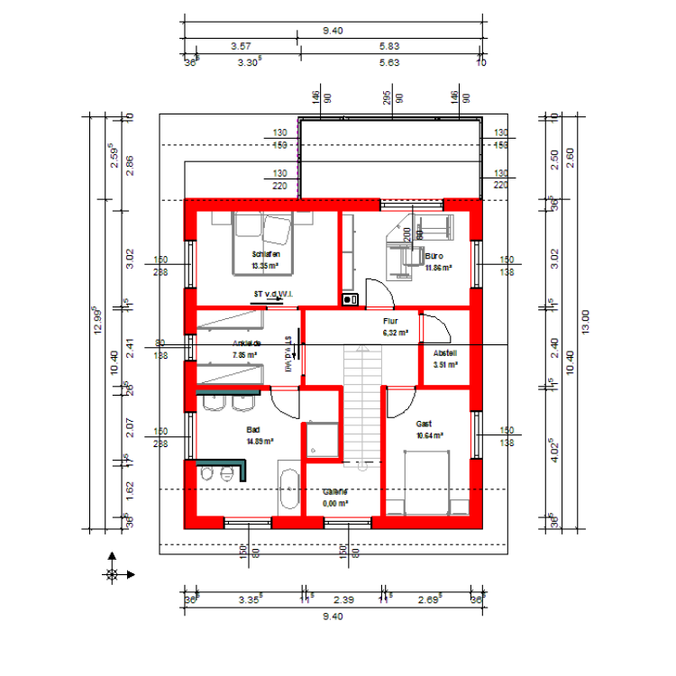
Grundriss (DG)

Die Räume im DG fügen sich um das Treppenhaus und ergeben somit eine besonders schöne Raumaufteilung.

Fertig !

Nach 11 Monaten konnten die Bauherren einziehen und Ihr Haus einrichten.

Die Aussenanlagen wie Pflasterarbeiten und Gartengestaltung ist das nächste Projekt. Wir wünschen gutes Gelingen !

Planung und Beratung

Gerne planen wir auch Ihr Bauvorhaben. Einfach auf KONTAKT klicken und Ihre Kontaktdaten hinterlassen. Wir melden uns umgehend bei Ihnen. Sofern der Lageplan und ggfls. der Bebaungsplan vorliegen, können wir uns zu einem ersten Gespräch zusammen setzen und Ihre Wunschvorstellungen erfassen. Unsere Architekten setzen dann Ihre Wunschvorstellungen zu Ihrem Traumhaus um.

Druckversion | Sitemap
© Baur Massiv Haus GmbH